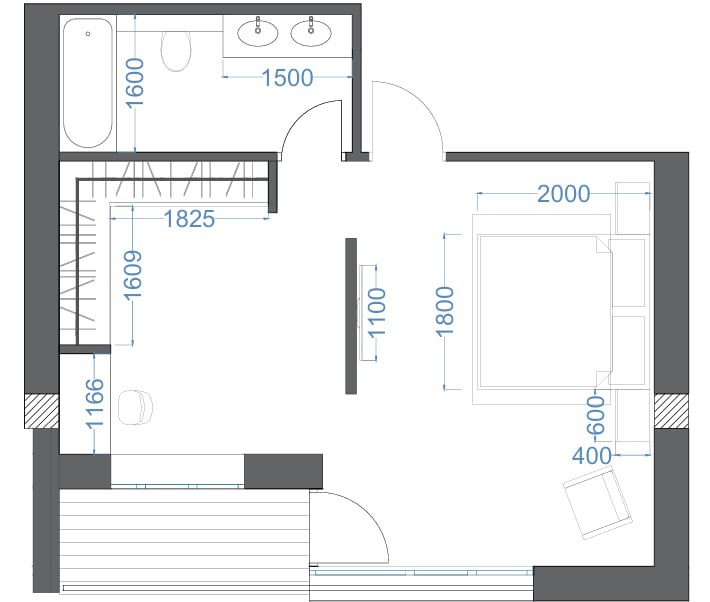
Luxury style/bedroom

The bedroom is designed in a luxurious style. Here you can see mirrors, decorative wooden panels, details in gold, a closet, a vanity corner.

Date2023

Tools used3ds Max, Corona renderer, AutoCAD